ÐË·¢ÓÎÏ·187pt

ѧУÖÇÄÜÕÕÃ÷¿ØÖÆÏµÍ³½â¾ö¼Æ»®
1¡¢¸ÅÊö
  ѧУÈËÁ÷½ÏÁ¿÷缯£¬£¬£¬ £¬£¬°ì¹«Êҽ϶࣬£¬£¬ £¬£¬ÕÕÃ÷ÓõçÔÚѧУµçÄÜÏûºÄÖÐÔ¼Õ¼µ½40%×óÓÒ¡£¡£¡£¡£¡£ÒÔÊǺÏÀíʹÓÃÕÕÃ÷¿ØÖÆÏµÍ³£¬£¬£¬ £¬£¬ÔÚÌáÉýÎ÷ϯºÍѧÉúµÄÌåÑéÇéÐÎϺéÁ÷ƽʹÓÃ×ÔÈ»¹âÕÕÃ÷£¬£¬£¬ £¬£¬Í¨¹ý¸ÐÓ¦¿ØÖÆ×öµ½ÈËÀ´µÆÁÁ£¬£¬£¬ £¬£¬ÈË×ßµÆÃð»ò¼á³ÖµØÇ¿¶ÈÕÕÃ÷£¬£¬£¬ £¬£¬Ö»¹Ü½â¾öÕÕÃ÷Óõ硣¡£¡£¡£¡£
 
  ÐË·¢ÓÎÏ·187ptÖÇÄÜÕÕÃ÷¿ØÖƽâ¾ö¼Æ»®ALIBUS£¨Acrel Lighting intelligent Bus£©»ùÓÚ³ÉÊìµÄRS485ͨѶ¿ØÖÆÊÖÒÕ£¬£¬£¬ £¬£¬Í¬Ê±Á¢ÒìµØÒýÈëÁËÔØ²¨ÕìÌýºÍ³åÍ»Åöײ¼ì²â»úÖÆ£¬£¬£¬ £¬£¬¶à»ú¼äʵÏÖÁËʵʱ˫ÏòͨѶ£¬£¬£¬ £¬£¬Ïß²ÄʹÓÃͨË׵įÁÕÏÍøÏߣ¬£¬£¬ £¬£¬Ò»´ÎÐÔ½â¾öͨѶÓ빩µçÎÊÌâ¡£¡£¡£¡£¡£
 
  Ðè×°ÖÃÔÚÅäµçÏäÄÚµÄÄ£¿£¿£¿£¿£¿£¿£¿éÖ÷ÒªÓпª¹ØÇý¶¯Æ÷¡¢µ÷¹âÇý¶¯Æ÷¡¢IPÍø¹ØµÈ£¬£¬£¬ £¬£¬ÕâЩÄ£¿£¿£¿£¿£¿£¿£¿éʹÓÃ35mm±ê×¼µ¼¹ì×°Ö㻣»£»£»£»Ðè×°ÖÃÔÚ¿ØÖÆÏÖ³¡µÄÄ£¿£¿£¿£¿£¿£¿£¿éÖ÷ÒªÓд«¸ÐÆ÷ºÍÖÇÄÜÃæ°å£¬£¬£¬ £¬£¬ÆäÖд«¸ÐÆ÷×÷Ϊ×Ô¶¯¿ØÖƸÐӦģ¿£¿£¿£¿£¿£¿£¿é£¬£¬£¬ £¬£¬Ç¶ÈëʽװÖÃÔÚ·¿¼ä¡¢×ßÀȶ¥²¿£¬£¬£¬ £¬£¬ÓÃÓÚ¼ì²âÏà¹ØÇøÓòÊÇ·ñÓÐÖ°Ô±Ô˶¯¡£¡£¡£¡£¡£ÓÐÈ˾­ÓÉʱ¿ÉÒÔÉ趨×Ô¶¯¿ØÖÆÁÁµÆ£¬£¬£¬ £¬£¬ÈËÍÑÀëºóÔÚÉ趨µÄʱ¼äÄÚϨµÆ¡£¡£¡£¡£¡£ÖÇÄÜÃæ°åµÈÊÖ¶¯¿ØÖÆ×°±¸£¬£¬£¬ £¬£¬¿ÉǶǽװÖÃÔÚ»ú·¿Èë¿Ú´¦£¬£¬£¬ £¬£¬ÕâÑù¿ÉʵÏÖ×Ô¶¯¿ØÖÆ¡¢ÏÖ³¡¿ØÖƺÍÖµ°àÊÒÔ¶³Ì¿ØÖÆÏàÍŽᡣ¡£¡£¡£¡£
 
  ϵͳ֧³Öµ¥¿Ø¡¢ÇøÓò¿ØÖÆ¡¢×Ô¶¯¿ØÖÆ¡¢¸ÐÓ¦¿ØÖÆ¡¢×¼Ê±¿ØÖÆ¡¢³¡¾°¿ØÖÆ¡¢µ÷¹â¿ØÖƵȶàÖÖ¿ØÖÆ·½·¨£¬£¬£¬ £¬£¬Ö§³ÖÑÓʱ¿ØÖÆ£¬£¬£¬ £¬£¬×èֹͬʱÁÁµÆ¸ººÉ¶ÔÅäµçϵͳÔì³É¹¥»÷¡£¡£¡£¡£¡£Ä£¿£¿£¿£¿£¿£¿£¿é²»ÒÀÀµÏµÍ³£¬£¬£¬ £¬£¬¿É×ÔÁ¦ÊÂÇ飬£¬£¬ £¬£¬Ã¿¸öÄ£¿£¿£¿£¿£¿£¿£¿é¾ù×Ô´øÊ±¼äÄ£¿£¿£¿£¿£¿£¿£¿é£¬£¬£¬ £¬£¬¿Éƾ֤¾­Î³¶È×Ô¶¯Ê¶±ðÈÕ³öÈÕÂäʱ¼äʵÏÖ×Ô¶¯¿ØÖƹ¦Ð§¡£¡£¡£¡£¡£
2¡¢²Î¿¼±ê×¼

GB/T 20965-2013 ¡¶¿ØÖÆÍøÂçHBESÊÖÒչ淶 סլºÍÂ¥Óî¿ØÖÆÏµÍ³¡·

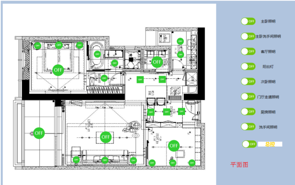
3¡¢ÉèÖüƻ®
 
 
4¡¢ÏµÍ³½á¹¹
 
5¡¢ÏµÍ³¹¦Ð§
¡ñ ÇøÓò¿ØÖÆ
¿ÉÒÔͨ¹ýµçÄÔ»òÕß´¥¿ØÖÕ¶Ë¿ØÖÆÒ»¶°Â¥¡¢Ä³Ò»²ã»òij¸öÇøÓòËùÓÐÕÕÃ÷µÆ¾ß¿ª¹Ø¡£¡£¡£¡£¡£¿£¿£¿£¿£¿£¿£¿ÉÒÔ¶Ôµ¥¸öÕÕÃ÷»ØÂ·ÊµÏÖ¿ª¹Ø¿ØÖÆ£¬£¬£¬ £¬£¬»¹¿É¶Ôÿ¸öÄ£¿£¿£¿£¿£¿£¿£¿é¡¢Ïä×Ó¡¢Â¥²ã¡¢×Ô½ç˵·ÖÇøÊµÏÖ×ܿء£¡£¡£¡£¡£ÏÖ³¡ÊܿػØÂ·µÄ¿ª¹Ø×´Ì¬»áʵʱ·´Ïì¡£¡£¡£¡£¡£
 
¡ñ µ÷¹â¿ØÖÆ
Í϶¯µ÷¹â¿Ø¼þ£¬£¬£¬ £¬£¬ÕÕÃ÷×°±¸´Ó0%µ½100%¾ÙÐе÷¹â,µã»÷×óÓÒË«·½µÄ·ûºÅ£¬£¬£¬ £¬£¬¿É¾ÙÐв½½øµ÷¹â£¬£¬£¬ £¬£¬Ò»¸ö²½½øÔöÌí/ïÔÌ­20%£»£»£»£»£»Í¨¹ýͼ±êµÄÁÁÃð״̬·´ÏìÏÖ³¡¿ª¹ØµÄ״̬¡£¡£¡£¡£¡£
µã»÷Ä£¿£¿£¿£¿£¿£¿£¿éµ÷¹âµ¥¿Ø¿ÉÒÔ¶ÔÒ»¸öÄ£¿£¿£¿£¿£¿£¿£¿éµÄÕÕÃ÷»ØÂ·ÊµÏÖµ÷¹â¿ØÖÆ£»£»£»£»£»
µã»÷µ÷¹â×Ü¿Ø,¿ÉÒÔ¶Ô¶à¸öÕÕÃ÷»ØÂ·ÊµÏÖµ÷¹â¿ØÖÆ¡£¡£¡£¡£¡£
 
¡ñ ׼ʱ¿ØÖÆ
ÖÇÄÜÕÕÃ÷¿ØÖÆÏµÍ³Í¨¹ýʱÖÓ¹ÜÀíÆ÷£¬£¬£¬ £¬£¬ÊµÏÖÓйØÇøÓòÕÕÃ÷µÄ׼ʱºÍ×Ô¶¯¹ÜÀí¹¦Ð§£¬£¬£¬ £¬£¬ÊµÏÖ×ßÀÈ¡¢¹«¹²Í¨µÀ¡¢¾°¹ÛÕÕÃ÷¡¢·º¹âÕÕÃ÷¡¢³µ¿âÕÕÃ÷׼ʱ¿ØÖÆ¡£¡£¡£¡£¡£Èç°ÙÒ¶´°×¼Ê±Éý½µ¡¢¼¯Öй©ÈÈ׼ʱµ÷Àí¡¢½ÚãåÈÕÕÕÃ÷׼ʱ¹Ø±Õ¡¢×¼Ê±Í¨ÖªµÈ¡£¡£¡£¡£¡£
 
¡ñ ³¡¾°¿ØÖÆ
ÖÇÄÜÕÕÃ÷¿ØÖÆÏµÍ³Æ¾Ö¤²î±ðÇøÓòµÄ¹¦Ð§ÐèÇ󣬣¬£¬ £¬£¬É趨²î±ðµÄ³¡¾°Ä£Ê½£¬£¬£¬ £¬£¬Íê³ÉÖÖÖÖÕÕÃ÷µÆ¾ßµÄ¿ØÖÆ×éºÏ£¬£¬£¬ £¬£¬µÖ´ïÃÀ»¯ÊÂÇéÇéÐΡ¢Ìá¸ßÌñ¾²¶È¡£¡£¡£¡£¡£
 
¡ñ ÈËÌå¸ÐÓ¦¿ØÖÆ
ÔÚͨµÀ¡¢×ßÀÈ¡¢¹«¹²ÇøÓò¡¢Â¥Ìݼ䡢¾Û»áÊҵȳ¡ºÏ°²ÅÅÈËÌå¸ÐÓ¦´«¸ÐÆ÷£¬£¬£¬ £¬£¬µ±Ö°Ô±½øÈëÇøÓòʱ£¬£¬£¬ £¬£¬×Ô¶¯·­¿ªÕÕÃ÷£»£»£»£»£»µ±Ö°Ô±ÍÑÀëºó£¬£¬£¬ £¬£¬ÑÓ³ÙÒ»¶Îʱ¼äÔٹرÕ£¬£¬£¬ £¬£¬Æ¾Ö¤ÐèÇóÉ趨¡£¡£¡£¡£¡£
 
¡ñ ´°Á±¿ØÖÆ
´°Á±¿ØÖÆÓÐÁ½Öֿؼþ£¬£¬£¬ £¬£¬Ò»ÖÖÊÇ¿ª¹ØºÍ²½½øµ÷Àí¹¦Ð§£»£»£»£»£»ÁíÒ»ÖÖÊÇÎÞ¼«µ÷ÀíºÍ²½½øµ÷Àí¹¦Ð§¡£¡£¡£¡£¡£
µã»÷´°Á±µ¥¿Ø¿Ø¼þ£¬£¬£¬ £¬£¬¿ÉÒÔ¿ªºÏ°ÙÒ¶´°/´°Á±»òÕßµ÷½â°ÙÒ¶½Ç¶È£»£»£»£»£»
µã»÷´°Á±×Ü¿ØÍ¼±ê£¬£¬£¬ £¬£¬¿ÉÒÔ¶Ô¶à·´°Á±ÊµÏÖµ÷¹â¿ØÖÆ£»£»£»£»£»
ͨ¹ýͼ±êµÄÁÁÃð״̬£¬£¬£¬ £¬£¬·´ÏìÏÖ³¡´°Á±µÄ¿ªºÏ״̬£¬£¬£¬ £¬£¬ÊýÖµÌåÏÖ´°Á±µÄÏà¶ÔÐж¯µÄÖµ¡£¡£¡£¡£¡£
 
¡ñ µçÁ÷¼ì²â
¶ÁÈ¡´øµçÁ÷¼ì²â¿ª¹ØÇý¶¯Æ÷ËùÓлØÂ·µÄµçÁ÷¡¢¿ª¹Ø¿ØÖÆ£¬£¬£¬ £¬£¬²¢×Ô¶¯ÆÊÎö»ØÂ·ÊÇ·ñÓйÊÕÏ״̬¡£¡£¡£¡£¡£µçÁ÷Öµ¡¢¹ÊÕÏ״̬ÏÔʾ¡¢¿ª¹Ø×´Ì¬»áʵʱ·´ÏìÔÚ½çÃæÉÏ¡£¡£¡£¡£¡£
 
¿Í·þ1
¿Í·þ2
¿Í·þ3
¿Í·þ4
ÍøÕ¾µØÍ¼